Black rectangle with white plus sign above a grid pattern of small rectangles

VEIL & VAULT

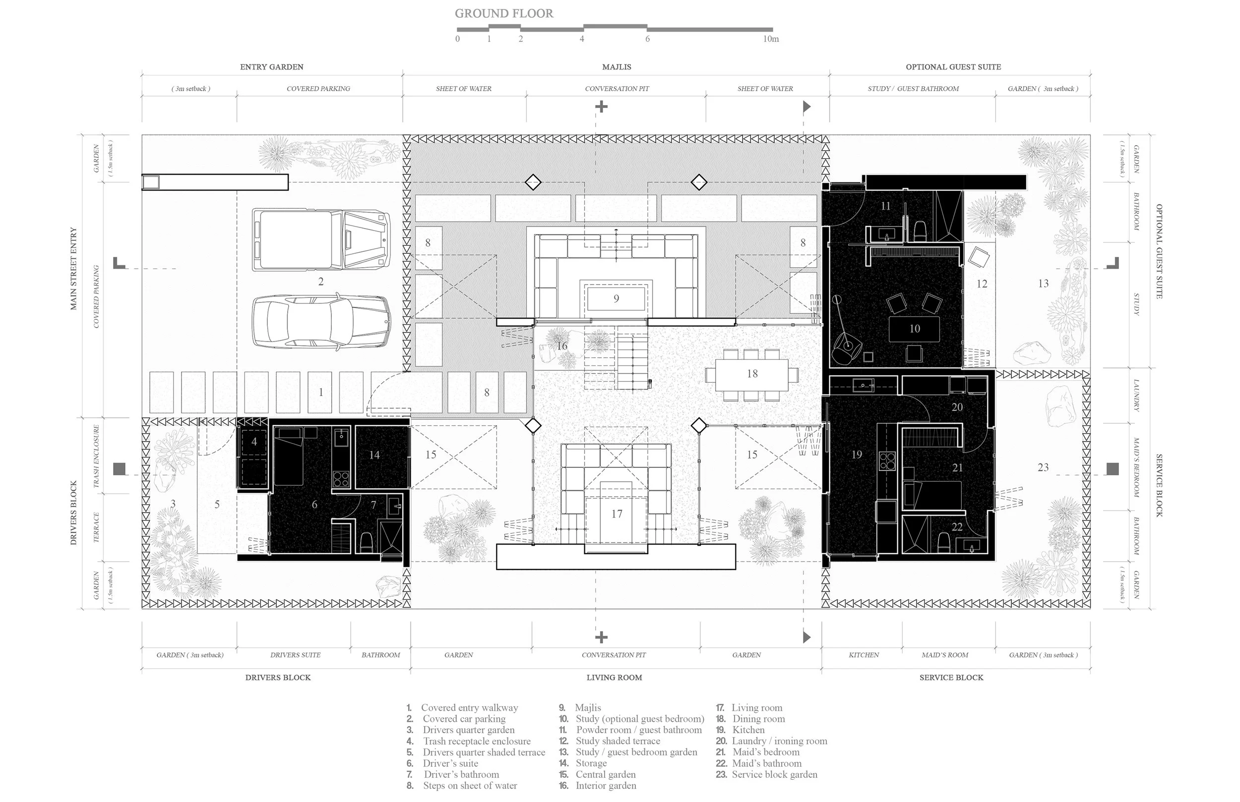
Veil & Vault is a 3,500 sq ft, 3-bedroom home in Dubai, UAE. The design reinterprets traditional desert architecture through a contemporary lens, drawing from time-tested strategies—thick enclosures, shaded courtyards, breeze-permeable walls, and wind towers—to create a vertically layered retreat rooted in environmental performance. Above, four bedroom suites are conceived as vaults: enclosed, protective spaces of repose. Each vault is paired with its own private courtyard—an open-air room that not only offers a secluded garden but also acts as a vertical light well, bringing daylight and ventilation directly into the bedrooms while simultaneously drawing light and air into the ground floor below. These upper-level chambers offer thermal mass, privacy, and stillness—suspended above the more open, communal level beneath. The ground floor is wrapped in a veil of breeze blocks, recalling the perforated screens of traditional desert homes. This porous skin filters light and air, inviting prevailing winds into the home and channeling them through a central stair tower—a modern reinterpretation of the barjeel. Alongside the upper courtyard shafts, this passive system minimizes reliance on mechanical cooling, enabling the house to regulate its internal climate naturally. This synthesis of veil and vault grounds the home in its environment—where protection meets openness, and tradition meets invention in the service of sustainability.